Pomocou DEMAG stohovacích žeriavov KBK je možné ľahko zvládnuť všetky skladovacie úlohy jedným pracovným krokom – bez rebríkov, vozíkov a iných pomôcok. Kusový tovar, kontajnery, alebo palety o hmotnosti 500 kg je možné spoľahlivo a bezpečne prepravovať, triediť a skladovať.

Stohovací žeriav KBK sa skladá z kombinácie dvojnosníkového podvesného žeriavu KBK a zákazníckeho riešenia stohovacej mačky s viazacím prostriedkom.
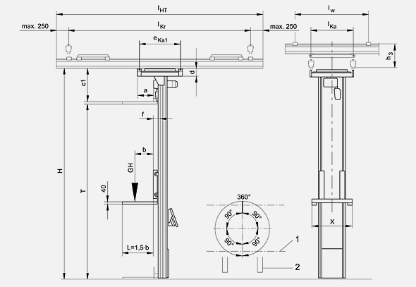
b = vzdialenosť od ťažiska bremena
H = výška zariadenia
lHT = dĺžka nosníka žeriava
lKa = rozpätie mačky
| Hmotnosť bremena | 80 kg |
|---|---|
| b max | 1200 mm |
| H max. | 5 110 mm |
| KBK |
II-L II |
| lHT max. |
5 000 mm 6 000 mm |
| LKa max. |
1 000 mm |
| Max. rýchlosť zdvihu | 8,0 m/min |
| Hmotnosť bremena | 125 kg |
|---|---|
| b max | 900 mm |
| H max. | 5 110 mm |
| KBK |
II-L II |
| lHT max. |
5 000 mm 6 000 mm |
| LKa max. |
1 000 mm |
| Max. rýchlosť zdvihu | 8,0 m/min |
| Hmotnosť bremena | 250 kg |
|---|---|
| b max | 600 mm |
| H max. | 5 110 mm |
| KBK |
II-L II |
| lHT max. |
5 000 mm 6 000 mm |
| LKa max. |
1 000 mm |
| Max. rýchlosť zdvihu | 8,0 m/min |
| Hmotnosť bremena | 500 kg |
|---|---|
| b max | 600 mm |
| H max. | 5 110 mm |
| KBK |
II |
| lHT max. |
4500 mm |
| LKa max. |
1 000 mm |
| Max. rýchlosť zdvihu | 8,0 m/min |